
お施主様のライフスタイルに合わせた、オーダーメイド空間は、素材にもとことんこだわり、ご家族だけのオリジナル空間に仕上げました。
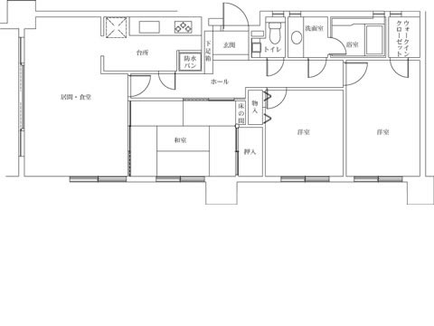
スケルトンリフォームで、全く新しい間取りにリフォーム。
施工data
■ 施工金額:1800万円
■ 施工日数:45日
■ 構造:RC造
■ 施工部位:全面
■ コーディネーター:村上晶子(インテリアコーディネーター)
★リフォームポイント
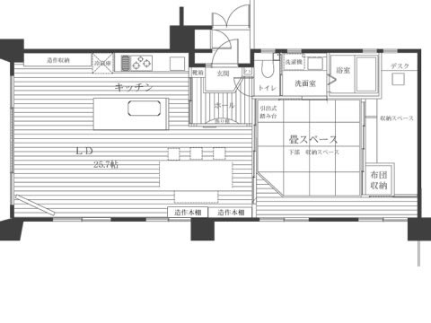
お客様のライフスタイルに合わせた、広々としたLDK空間とオーダーメイドで製作したキッチンに造作家具。
壁面収納、畳下収納 などあらゆる空間を有効活用し、毎日片付いた家になる技ありリフォーム。
こだわりの素材が更に生かされます。



間仕切壁を全て取り払いハコの状態に。
ここから床・壁・天井を造っていき新しい空間を造り上げます。

独立していたキッチン空間の壁をなくし、和室、廊下部分もLDKに取り込み、広々とした家族が集える明るい空間に。


アイランドキッチンは、天板を大きくとり、ダイニングテーブルとしても利用。
照明は一度取り付けたら取替えの必要がないと言われる省エネ商品LEDダウンライトを採用。

和室は解体し、リビングに広く取り込みました。

琉球畳を敷き詰めてモダンな印象に。
座を上げて和室を造ったのは、畳下に収納を造ったためです。
大容量収納で、いつもスッキリ暮らせます。

畳下には収納の他に秘密がもう一つ。
畳を一枚めくり扉を開けば掘りごたつとしても利用できるよう造作。
LDKは、ご家族はもちろんお友達も集える楽しい場であり、生活の中心として設計しましたが、この空間に掘りごたつを造ったことで、ご家族だけの憩いの場ができました。

収納スペースとして確保したこちらのスペースにも、温かみのある無垢フローリングを使用したのは、ご主人の書斎としても利用するためです。

室内にある”縁側”のようなこの段差。
ここにも引き出し収納を造りました。

扉を全てオープンにするとワンルームのような広々とした明るい空間に。

玄関を開けると、ガラスブロックから光が差し込む明るい玄関。
室内用の施工性◎の特別な薄型ガラスブロックを採用。
塗り壁で仕上げた壁には奥様お気に入りの絵画を飾られる予定だそうです。
アーチ型の飾りテーブルは、可動式で取り外し可能。気分によってお花やインテリア小物を飾っていただけます。
メインサイトのTOPページはコチラ






ページ上に戻る
