
中古住宅を購入されたN様。
築8年ということで、まだまだ使える水廻り設備は取替えず、その分内装にこだわったリフォームで、ゆったり落ち着いて暮らせるための収納が充実した寛げる空間にリフォーム。
施工data
■ 築年数:9年 ■ 施工金額:357万円
■ 施工日数:30日 ■ 構造:RC造
■ 施工部位:内装全面
■ コーディネーター
村上晶子(インテリアコーディネーター)
★リフォームポイント
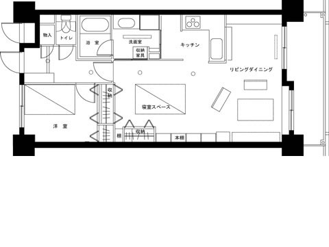
スッキリ暮らせる収納プラン。リビング横にあった洋室をリビングにとりこむことで、ゆとりある空間に。
フローリングと雰囲気を合わせた壁面収納でリビングはいつもスッキリ。

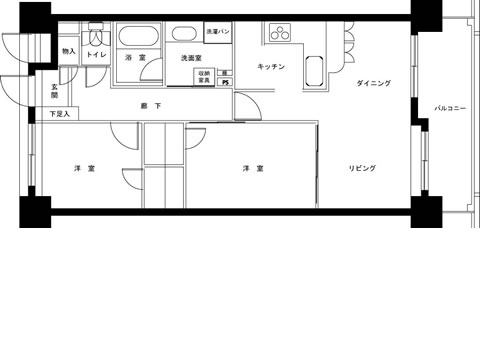
独立した洋室が並ぶ2LDKのマンション。
水廻りの設備はまだ十分使用可能だが、内装は傷んでおり、N様のライフスタイルに合わない間取りでした。

1部屋は独立した空間が欲しい。とのご要望からリビング隣の洋室をリビングに取り込みゆったりと余裕のLD空間に。
壁の仕上げは全て自然素材塗り壁「ダイアトーマス」を使用。
調湿効果に優れ部屋に発生する結露を抑制してくれます。
今回は、ほんのりクリームかかった柔らかいカラーを選択。目にも優しい癒しの空間が完成。

9.9平米の洋室の間仕切りを取り払い24平米のリビングダイニングルームに。
壁:自然素材塗り壁(ダイアトーマス)
天井:ビニールクロス
床:フローリング(ダイケン オトユカファインⅡF/ネオアンバー)
ファインコート(厚膜強化UV塗装)仕上げで傷がつきにくく高級感あるフロア材です。
適度な弾力性があり、歩行感も良好です。
◆木工事:約33万円
◆天井クロス貼替え:約4万円
◆塗り壁:約12万円

カウンターと収納は撤去。
こちらにもオーダーで壁面収納を造作。
収納の中央部はパソコンや周辺機器を置かれる予定だそうです。
また、お気に入りの小物を飾る事で、LD空間を華やかにできます。

壁全面塗り壁で雰囲気良く仕上げました。
テクスチャにより様々な表情を見せてくれます。

天井のダウンライトで、また違った塗り壁の表情が現れます 。

LD・廊下と同じ床材を使用。
こちらも壁全面塗り壁で仕上げました。
◆木工事:約9万円
◆塗り壁:約11万円
◆天井クロス張替え:約1万円


リビング側の扉を閉めた状態。
正面右側の棚はダボレールを採用しているので、棚を必要な高さへと簡単に変えることが可能。


リビングには、天井まである大容量壁面収納とクローゼットを新設。
日常的に使用するお掃除用具から大切な書類、お気に入りの書籍など、収めるもにぴったり合わせて造作。
収納のしやすさと、収めたものがどこにあるのかすぐ分かるよう細かく設計。

クローゼットの折れ戸は開口幅がしっかり確保でき、
折れ戸が引戸のように左右に移動するので、大きな物の出し入れもスムーズです。
メインサイトのTOPページはコチラ






ページ上に戻る
