30代 こだわりの中古マンションリノベーション 広島市中区

広島市の中心部にある利便性の良い土地で中古マンションを購入。
ご夫婦の持つこだわりのデザインとライフスタイルに合わせたオリジナルのリノベーションが完成。
施工data
■ 築年数:29年
■ 施工日数:30日
■ 構造:RC造
■ 施工部位:全面(浴室を除く)
■ コーディネーター:城代 博(二級建築士・インテリアコーディネーター)秋田 泰宏
★リフォームポイント
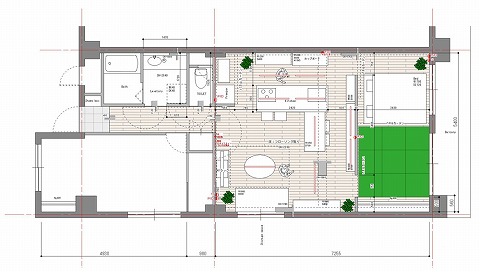
マンションに無垢フローリングを貼り、壁付けI型のキッチンを対面式キッチンに。


LDKと和室2間の間仕切壁を取り払い、LDKに取り込み広々とした空間に。

床には北欧パインの無垢フローリングを貼り自然素材のワックスで仕上げました。
ワックス:オスモ社 ウッドワックス(チーク)
半透明カラーワックスは、無垢フローリングの木目を活かした仕上がりに。カラダにも優しい自然素材。


和室からベッドルームへ
6畳2間の和室を間仕切り壁ごと解体し、LDKを広く。
LDKとの壁は圧迫間が感じられないよう天井とは離して壁を立てました。
南側のベランダからLDKへガラスブロック越しに光を通し明るいLDKに。


高さ調整可能なダボレールをつけた収納棚をシンプルに設置。

メインサイトのTOPページはコチラ






ページ上に戻る



