
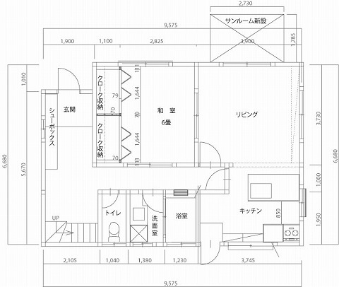
空き家にしていた我が家をこれからの夫婦二人のライフスタイルに合わせた空間にリフォーム。
施工data
■ 築年数:31年 ■ 施工金額:1350万円
■ 施工日数:40日 ■ 構造:木造
■ 施工部位:全面
■ コーディネーター:井筒 千世美
☆リフォームポイント:狭く独立していたキッチン空間。リビングとキッチンを隔てていた間仕切りを取り払いオープンな空間に。夫婦二人のコミュニケーションが深まる空間に。予算とライフスタイルに合わせた全面リフォームが完成しました。



外壁塗装/瓦葺き替え/雨戸取替/カーポート設置他
外廻り全体工事価格 ¥4,800,000-
三角のとんがり屋根に良く似合う雰囲気の瓦と外壁カラーを選びました。
屋根は南欧風瓦でカラーはモスグリーン。
外壁はクリーム色。
北側ブロック上と、ガレージ、玄関横に人工木材の目隠しフェンスを設置。

門廻りの塀も外壁と同じカラーで塗装。
既存の塀をカットしてアレンジ。


オリジナルのかわいらしい立水栓
パン部分はタイルを砕いて乱貼りしました。
施工費¥50,000-

外構と雰囲気を合わせた白い親子玄関ドア
施工費¥150,000-

ガラス部分がステンドグラス調でエレガントな雰囲気に。


キッチン:YAMAHAベリーEシリーズ
アイランド型
背面にガスコンロを設置した2列型
施工費:¥1,425,000-

爽やかで優しい印象のソフトグリーンにマンゴーカラーのシンクで色鮮やかな明るいキッチン。
キッチンにこだわたったのは、料理人のご主人。
広々とした作業スペースでお料理も楽しんでいただけます。
L1886×W1010

既製品の洗面化粧台ではなく、オリジナルで製作。
施工費¥148,500-
スッキリした空間になりました。
モザイクタイルで仕上げたカウンターにスクエアの洗面ボウルを設置。
床もタイルと同系色の明るく温かみのあるオレンジのクッションフロアを貼りました。


吊戸棚もオーダー製作。
製作、取付施工費¥101,500-
メインサイトのTOPページはコチラ






ページ上に戻る


