Cool&stylish modern 新たなLDK空間 広島市西区

LDKを拡張して明るくオープンなLDK空間に。
機能的でデザイン性あるマンションリフォーム。
施工data
■ 築年数:16年
■ 施工金額:255万円
■ 施工日数:16日
■ 構造:RC
■ 施工部位:LDK・廊下他
■ コーディネーター:井筒 千世美
★リフォームポイント
4畳分もあるウォークインクローゼットでスッキリ暮らせるプラン。
一番のこだわりは、キッチンにオーダーで製作し取り付けたL字のステンレスカウンター。
クールでスタイリッシュなLDK空間を演出。

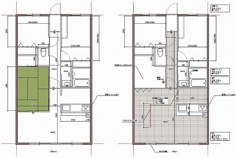
リビングに隣接する6畳の和室を撤去し、3畳分をリビングに取り込み、残りの3畳分+押入れ1畳分をウォークインクローゼットに。
LDK+廊下の床を無垢フローリングに貼り替え、全室の壁・天井のクロスを貼り替えました。

和室を撤去し、リビングを拡張

オープンな対面式キッチンに

遮音規定をクリアするため、既存の遮音フローリング上に遮音マット・コンパネ・無垢フローリングの順に施工。
壁・天井:クロス張り替え ¥90,000-
重ね貼りで床の高さが上がった為、建具をカットして調整しています。
建具カット:3ヶ所×¥6,000

床:カバ 無垢フローリング ダークブラウン(ウレタン塗装仕上げ)
¥280,000(31平米)

キッチンから外の景色が見えるようにもなりました。

床:カバ 無垢フローリング ダークブラウン(ウレタン塗装仕上げ)
¥280,000(31平米)

床:フローリング張り替え ¥60,000
壁・天井:クロス張り替え ¥21,000
メインサイトのTOPページはコチラ






ページ上に戻る
