アクセントクロスでオリジナル空間 広島市南区

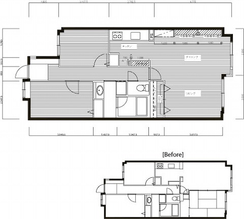
中古マンションを全面的にリフォーム。
可動式の収納棚を設置しスッキリした空間に。
施工data
■ 築年数:18年
■ 施工金額:378万円
■ 構造:RC造
■ 施工日数:20日
■ 施工部位:全面
■ コーディネーター:城代 博
☆リフォームポイント:各部屋アクセントクロスでオリジナル空間に。収納量アップ&使いやすい収納。

ダイニングに隣接する和室を撤去し、広々としたリビングダイニング空間に。

和室を撤去し、ダイニングと一体化。
カーペットから巾広のフローリングに張り替え明るい空間に。

落ち着いたブラウンのアクセントクロスで陰影をつけ空間に広がりをもたせました。
天井にダクトレールを取付け、スポットライトを設置。
旧和室の押入れ部分は、クローゼット扉を設置。

壁面には、入れる物に合わせて簡単に高さ調節可能な可動棚を造作。
正面左手のスペースにはお手持ちの家具を置きます。
将来的に、可動棚収納前面に引戸を設置可能で、LD空間の雰囲気を変えることができます。

キッチン入口を少し広くし、窓から入る光を多く取り込めるように。

キッチン背面には、カウンターと可動棚を設置。

廊下・LDと同じく幅広のフローリングを施工。
クロスも張り替え明るい空間に。
メインサイトのTOPページはコチラ






ページ上に戻る


