
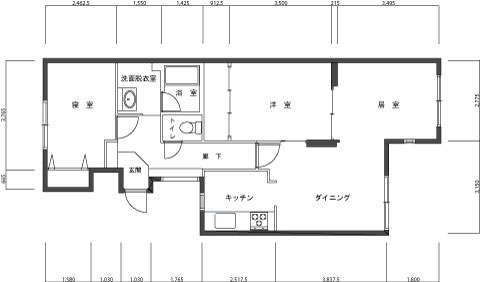
約66平米のマンションをほぼ全面的にリノベーション。水廻り設備機器を全て取り替え、素材にもこだわったオリジナルの空間に。
住み手の暮らしに合わせた生活動線プランでコミュニケーション溢れる楽しい住まいに。
施工data
■ 築年数:18年
■ 施工金額:378万円
■ 構造:RC造
■ 施工日数:20日
■ 施工部位:全面
■ コーディネーター:城代 博
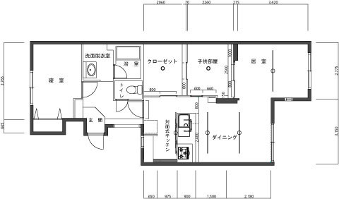
☆リフォームポイント:コミュニケーションがとりやすいLDK中心の暮らしになるよう素材、キッチン、デザインにこだわり天井高も以前より高く広々とした解放感あるプランに。


寝室を除き全面的にリノベーション。
独立していたキッチンをオープンなペニンシュラタイプのキッチン空間に。
洋室をクローゼットと子供部屋に。






床:北欧パイン 無塗装品 4,000円/平米
床仕上げ:ウッドワックス(ウォルナット)/オスモ社
※施主施工
自然素材塗料仕上げで、無垢の質感、温かみをそのまま感じられる仕上がりに。
明るく柔らかい印象のパイン材をウォルナットで仕上げアンティークな雰囲気に。
無垢フローリング
LDK/子供部屋/ウォークインクローゼット
(45平米)322,000円(巾木、施工手間含む)

壁:自然素材塗り壁 ダイアトーマス
LDK 140,000円(左官手間含む)
装飾:ベネツィアンガラス/トーヨーキッチン
カラー/ラピスラズリ

ダイニング空間にベネツィアンガラスでデザインされた模様は、二人の娘さんプロデュースによるもの。
左官さんに協力していただき、その場でデザインした模様をその場で貼って行きました。
ご家族にとってより思い出深い空間に。

DK空間に隣接するキッズルーム。
額縁にガラスをはめ込み空間の広がりと遊び心を。ロールスクリーンでプライバシーもしっかり確保。
どこにいても、お子さんを感じられる空間に。

天井高をとるため天井を解体。
電気配線等を隠すため天井を新たに造りましたが、ダクトは露出させ、白の塗装で仕上げました。

洋室、押入れを解体し子供部屋に。
壁:クロス
床:無垢フローリング(北欧パイン)


ガラスをのぞけばキッチンが見渡せます。
リビングからの光も取り込み明るい空間に。
足触りがよく気持ちいい無垢フローリングをキッズルームにも。

床に合わせて、オーダー制作した建具。
木製片引き扉(ガラス入り)
天然木突き板貼り 800×1900
64,000円/枚


廊下の床には、重厚感ある幅広フローリングを。
ワックスフリーでお手入れ簡単。
メインサイトのTOPページはコチラ






ページ上に戻る


