借家リフレッシュ工事 広島市東区

借家退去に伴いう全面内装工事。
こんなにキレイになるものなんですね。
と大変喜んでいただきました。
施工data
■ 施工金額:280万円
■ 施工日数:25日
■ 構造:木造
■ 施工部位:LDK・和室・トイレ・浴室・洗面
■ コーディネーター:城代 博
★リフォームポイント
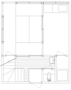
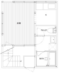
水廻りの位置変更で動線のよい間取りに。


和室を洋室に替え、水廻りの位置を変更。
2階は、間取り変更なしで表装替えを行いました。


傷みもひどく暗いキッチン空間

明るく清潔感あるキッチン空間に。

在来の浴室からシステムバスルームに。

手洗い器しかなかったリフォーム前。
間取り変更に伴い、洗面脱衣室を確保し洗面化粧台を設置。

施工前の浴室と手洗い場。

・襖張り替え
・畳表替え
・クロス張替え
・その他補修工事

・襖からフラッシュ引き違い扉に取り替え。
メインサイトのTOPページはコチラ






ページ上に戻る




