こだわりの対面式キッチンで明るいLDK空間 広島市西区 reno+plus10

お父様から譲り受けた住まいを夫婦二人のライフスタイルに合わせた空間にリノベーション。
施工data
■ 築年数:29年
■ 施工金額:450万円
■ 施工日数:40日
■ 構造:RC造
■ 施工部位:全面
■ コーディネーター:城代 博
★リフォームポイント
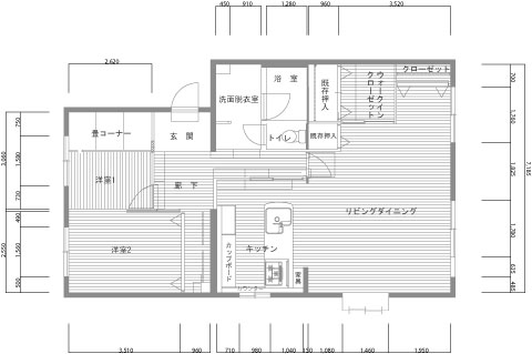
収納量をアップさせてスッキリとした空間に。
シンプルなカラーコーディネートで明るく開放感ある空間にデザイン。


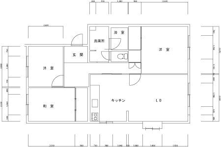
LDに隣接する部屋(12.5㎡)との間仕切り壁を解体し、壁付けのキッチンを対面式に変更。
一部をLDに取り込み約5㎡分を収納スペースに。
玄関正面の和室は洋室に仕様変更。
和室がなくなったため、玄関横の洋室に小上がりの畳コーナーを造作。


リビングに隣接する部屋との間仕切り壁を取り払って約8㎡リビングに取り込みました。
一坪ほどのウォークインクローゼットと1.15㎡のクローゼットを造作し収納量アップ。

□直張りフローリング LL45
朝日ウッドテック ダイアモンドフロア
(ワックスフリー)
床施工費 66㎡ ¥300,000-
□クロス張り替え
施工費 290m ¥290,000-


◇システムキッチン:ベリー /ヤマハ
ペニンシュラ型 Vシリーズ
食洗器、両面焼きグリル 定価¥1,339,900-
◇カップボード:ベリー/ヤマハ
W2600×H2100 定価¥771,600-
施工費¥1,952,600-

和室を洋室に仕様変更 。

押入れをクローゼットに変え使い勝手よく。

和室を全て洋室に仕様変更したため、こちらの洋室に小上がりをつくって畳を敷きました。
畳×ガラスブロックがモダンな印象を与えますが、暗かった玄関の採光として機能的にも活躍。
□縁なし畳 873×1200 厚30 特注寸法
施工費:51,000

メインサイトのTOPページはコチラ






ページ上に戻る
