和室をベッドルームとキッズルームに 広島市安芸区

旅館のような趣ある日本家屋をお子さんの誕生をきっかけに、1階和室部分を使い勝手よく洋室にリノベーション。
施工data
■ 築年数:50年
■ 施工金額:174万円
■ 施工日数:18日
■ 構造:木造
■ 施工部位:和室
■ コーディネーター:城代 博
★リフォームポイント
お子さんも喜ぶ、体に優しい自然素材を使ったリフォーム。

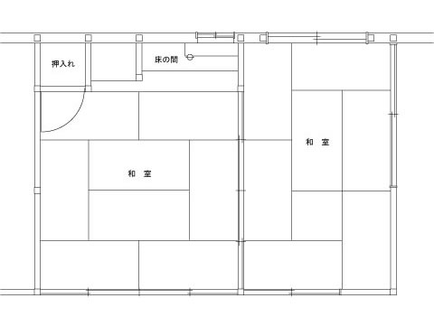
1階 和室10畳 +床の間
和室8畳

和室同士を仕切る襖を撤去し壁を造作。
寝室と子ども部屋に。
寝室にはクローゼットと可動棚付きのカウンターを造作。
壁は、自然素材塗り壁 ダイアトーマスを塗り、床は北欧パインの無垢フローリングを貼り、自然塗料で仕上げた体に優しい自然素材の空間に。





自然素材塗り壁ダイアトーマスを塗り、床には北欧パインの無垢フローリングに自然素材塗料で仕上げた体に優しい空間。

玄関との間仕切り壁には、光を透すガラスブロックをはめ込みました。

キッズルーム同様自然素材仕上げの空間。
以前押入れと床の間があったスペースはクローゼットを設置し、可動棚付きのカウンターを造作。

メインサイトのTOPページはコチラ






ページ上に戻る


