
お子様も独立されて、 部屋の使用目的や、生活動線が変わってきた事をきっかけに、ご夫婦のライフスタイルに合った間取りや設備にリフォーム。
施工data
■ 築年数:26年
■ 施工金額:720万円
■ 施工日数:40日
■ 構造:RC造
■ 施工部位:全面
■ コーディネーター:村上晶子(インテリアコーディネーター)
★リフォームポイント
K様は、大変こだわりをお持ちで、とてもセンスの良い奥様でしたので、リフォーム前の打合せでしっかりとコミュニケーションをとり、奥様の趣味・趣向を理解することで、お好みに合わせた設備や建材を提案することができました。
また、あらゆるニッチを利用し、部屋のいたるところに収納スペースを配置。空間を有効活用したことで、収めたいものが使う場所のすぐ側に収められる設計で、いつでもお部屋がスッキリ保てます。


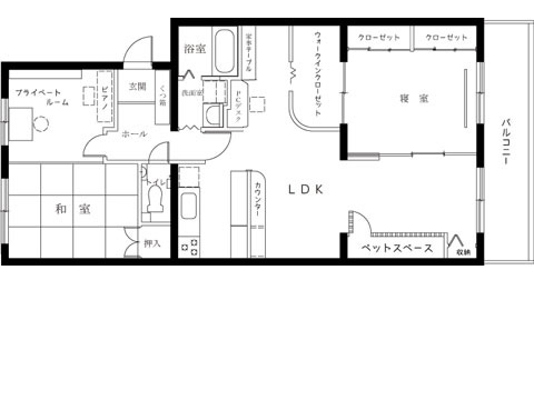
和室を取り込み寛ぎのLDK空間に。
寝室には、2間分のクローゼット。寝室の隣にはウォークインクローゼットを設け、ダイニング側からも寝室側からの出入りできるように。
リビングにはペットスペースとペット用品をしっかり収納できる物入れを設置。
プライベートルームのご主人専用のデスクと本棚はオーダーで造作。
ご家族の生活動線を考えた快適な間取りになりました。

色々なメーカーショールームに奥様ご自身で見て廻られ、最終的に決定したキッチンが、ヤマハ/ベリー。
カラフルなシンクが最近女性に人気のキッチン。
キッチンパネルはパステル調のカラフルなモザイクタイル柄で、お料理も一層楽しくなりそうです。
家事もラクラクな作業カウンター下は、食器、家電が収納でき、 便利な収納ワゴンも付いています。
家電収納上には、吊戸棚も設置したので、キッチン廻りはいつもスッキリ。
お料理もスムーズにできますね。

キッチンカウンター背面は、夕食後のひと時を、ご夫婦2人で仲良く過ごせるバーカウンター。

キッチンのシンクと同じ、元気が出るような明るいビタミンカラーのレモン色チェアは、照明との相性もピッタリです。

清潔感ある真っ白な壁に、落ち着きのある上品な床材。
それに合わせて、テーブルとチェアを選びました。

キッチン、ダイニング、リビングと、どこで寛いでもコミュニケーションがとれるようになりました。

リビングには立派なペットスペースが誕生。
ペット用品がしっかり収まる物入れも完備され、ご夫婦の愛するワンちゃん寛ぎの空間に。

床と腰壁は耐水性もある丈夫なクロスとクッションフロアです。
リビングの上品な床とは一味違う、アンティーク調のもので仕上げました。

リビングの隣は、2間分もあるクローゼットを備えた寝室。
クローゼットの棚は可動式になっているので、収めたい持ち物の高さでピッタリ収まり、いつでもスッキリです。
収納扉には、開けやすく閉めやすい3枚連動引き扉を採用。こちらは、折戸のように部屋への出っ張りがないため、レイアウトの制約がありません。
また、従来の引戸と比べて開口が大きくとれるので、物の出し入れもスムーズにいくのが嬉しいですね。
細部にこういった作業動線効率の良い設備や建材を使用する事で、お家全体が動きやすく生活しやすい快適空間になるんですね。

寝室からも、ダイニング側からも出入りできる、動線の良い広々としたウォークインクローゼット。
ダイニング側からは、簡単に入れるように、アコーディオンカーテン扉に。

ダイニング脇にある壁とウォークインクローゼットとの間のスペースは、パソコンデスクと折りたたみ式の家事作業台を造りつけ。
空間にRの壁を造り柔らかく優しい印象に。

プライベートスペースと隣接する和室は、琉球畳でモダンな落ち着きのある空間に。レースのロールスクリーンが、明るくシンプルな空間を演出してくれます。
プライベートルームと共に、断熱、防音、防犯対策として既存のサッシの内側に窓を設置しました。

ご主人の書斎。そして奥様の音楽ルームとしてのプライベートルーム。

提案時の家具図面。

当初は、引き出しのないデスクを設計していましたが、やはりスッキリ収納のためには、引き出し付ですね。

天井までの壁面本棚で大量の本を収納可能に。

奥様のピアノの上には、丸い感じのフォルムがかわいくてお洒落な白いスポットを設置。

大容量の玄関収納を取り付けてホールをスッキリ。

落ち着いた雰囲気のある淡いブランの便器は奥様、住空間スタッフともお気に入りです。
鉄平石柄の床にシックなカラーの腰壁。腰壁上部の壁は、塗り壁で仕上げ雰囲気のあるトイレ空間に。
ご夫婦揃って『とっても落ち着く』と大変気に入っていただきました。
メインサイトのTOPページはコチラ







ページ上に戻る
