
お施主様のライフスタイルに合わせた、オーダーメイド空間は、素材にもとことんこだわり、ご家族だけのオリジナル空間に仕上げました。
施工data
■ 築年数:18年
■ 施工金額:1,800万円
■ 施工日数:45日
■ 構造:RC造
■ 施工部位:全面
■ コーディネーター:村上晶子(インテリアコーディネーター)
★リフォームポイント
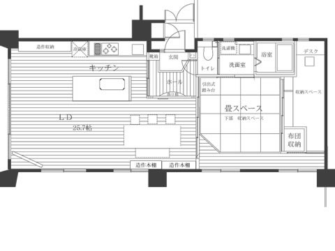
お客様のライフスタイルに合わせ、広々としたLDK空間とオーダーメイドで製作したキッチンに造作家具。
壁面収納、畳下収納をあらゆる空間に有効活用し、毎日片付いた家になる技ありリフォーム。
こだわりの素材が更に生かされます。



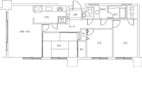
間仕切壁を全て取り払いハコの状態に。
ここから床、壁、天井を造っていき新しい空間を造り上げます。

独立していたキッチン空間の壁をなくし、和室、廊下部分もLDKに取り込み、広々とした家族が集える明るい空間に。


アイランドキッチンは、天板を大きくとり、ダイニングテーブルとして利用。
照明は一度取り付けたら取替えの必要がないと言われる省エネ商品LEDダウンライトを採用。

独立していた狭くて暗いキッチン。
『夏場は暑くてお料理も大変』
と奥様。
明るくオープンなキッチンで、家族と会話をしながらお料理がしたい。とのご要望で、作業面積・収納を多くとれるレイアウトの
Ⅱ列型 オープン対面プランを採用しました。
清掃性の高いステンレスキッチンはこだわりのフルオーダーです。

<壁面キッチン>
オーダーならではの調理器機類は、既製品では叶わなかった充実装備で、お料理を何倍も楽しく美味しく。
◇サブシンク 混合水栓:GROHE アラベスク

◇ガスコンロ:ハーマン(S-ブリンク+do)
魚焼きグリルでは、ダッチオーブンが楽しめます。
ガスコンロには、特注で製作したステンレスカバーもセットで。
◇BBQグリル:
ガゲナウ
無段階に火力調整ができるので、肉や魚を焼く以外に、トロ火での煮込み料理やお皿の保温にも利用可。ヒーターの下に敷き詰められた溶岩石が油を吸収、蒸発、濃縮してくれるので、臭いがこもる心配もありません。
◇ガスオーブン:ハーマン(コンビネーションレンジ)
高速オーブンと電子レンジの同時加熱で美味しさを閉じ込め、素早く調理できます。

スイッチカバーも白ではなく、タイルとの色調を考え、漆調のカバーを選びました。

<アイランドキッチン>
シンク側には、ビルトイン食洗器と充実の収納引き出し。
◇シンク:3step sink/水切りプレート・調理プレート・まな板がシンクにセットされているので、出し入れの手間もなく調理時間を短縮させてくれます。
天板を本体よりも大きくして、ダイニングテーブルとして利用します。
天井までの目隠し壁は、圧迫感を和らげるために、飾り棚としても遊べるようくり抜きました。
キッチン廻りに貼った厳選したタイルが個性を引き出します。

◇水栓
:GROHE K4
独特のカーブを描く有機的なフォルムはオープンな見せるキッチンにぴったりのハイセンスな水栓。

和室は解体し、リビングに広く取り込みました。

琉球畳を敷き詰めモダンな印象に。
座を上げて和室を造ったのは、畳下に収納を造ったためです。
大容量収納で、いつもスッキリ暮らせます。

畳下には収納の他に秘密がもう一つ。
畳を一枚めくり扉を開けば掘りごたつとしても利用できるよう造作。
LDKは、ご家族はもちろんお友達も集える楽しい場であり、生活の中心として設計しましたが、この空間に掘りごたつを造ったことで、ご家族だけの憩いの場ができました。

TOTOのマンション用システムバスルーム
浴槽側についた大きな特注鏡で、バスルーム全体が広く明るい印象に。

床の白いタイルと統一感を持たせたトイレ空間。
扉は、室内の建具と合わせたオーダー扉。

収納スペースとして確保したこちらのスペースにも、温かみのある無垢フローリングを使用したのは、ご主人の書斎としても利用するためです。

室内にある” 縁側 ”のようなこの段差。
ここにも引き出し収納を造りました。

扉を全てオープンにするとワンルームのような広々とした明るい空間に。

キッチン横の大容量壁面カップボードも、室内建具と合わせたオーダー家具。
たくさんある食器もぎゅうぎゅうに敷き詰めることなくゆったりとキレイに納められ、どこに何が収めてあるのか一目で分かるのが嬉しいですね。

天井まである本棚も、どこにどの本があるのか一目で分かるような、ゆとりある設計。
お気に入りのインテリア小物や植物を飾ってもOK。

玄関ドアを開けると、ガラスブロックから光が差込む明るい玄関。
室内用の施工性◎の特別な薄型ガラスブロックを採用。
塗り壁で仕上げた壁には奥様お気に入りの絵画を飾られる予定だそうです。
アーチ型の飾りテーブルは、可動式で取り外し可能。気分によってお花やインテリア小物を飾ります。
メインサイトのTOPページはコチラ







ページ上に戻る
