
休日はご家族でアウトドアを楽しまれるM様からお見積り依頼をいただいたのは8月のことでした。
お子さんのご成長に合わせて、子供部屋が必要になったのがリフォームのきっかけ。
『和室をかっこいい寛げる洋室にして、自分の時間が持てる空間にしたい。
』
『収納スペースをたくさん確保したい』
とのご要望でした。
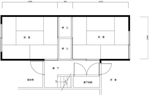
現在ある和室2部屋を3部屋にして、1部屋は収納スペースに。
当社以外でもお見積りを依頼されていらっしゃいましたが、数ヶ月に渡るお打合せとプラン提出を重ねた結果、『プランが良かった』とお褒めいただき今回工事に至りました。
施工data
■ 築年数:27年
■ 施工金額:150万円
■ 施工日数:21日
■ 構造:RC造 (メゾネットタイプ)
■ 施工部位:和室
■ コーディネーター
村上晶子(インテリアコーディネーター)
松田絵里(二級建築士)
★リフォームポイント
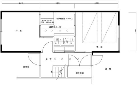
2部屋を3部屋にすることで狭くなってしまう各部屋をいかに寛げる空間にするか。使い勝手の良い収納を造るか。をポイントにM様のこだわりを取り入れながらプラン。

6帖の和室が2部屋
その2部屋中央に押入れ
それぞれ解体し中央の押入れスペースは拡大して両部屋から通り抜け可能な使い勝手の良い収納スペースに。

1部屋は寝室、もう1部屋は寛げる洋室。
中央には入れたいものがぴったり収まる収納スペースに。

鳥瞰図でより分かり易くご提案。

日焼けした古い畳から、フローリングに張替え洋室にリフォーム。
外からの視線を気にせず、光を取り入れる事が可能なペアタイプのプリーツスクリーン。
部屋全体が明るくなりました。

150mmと幅広の落ちついたカラーを選んだことで高級感のある空間に。
こちらのフローリングは、特殊なコーティングが施されてある耐久性の高いフロア材。
キャスターのへこみ傷や掃除機のイスを使った時のひっかき傷が付きにくい仕上げになっています。

収納スペースへの入口には、上吊式の引戸を採用。
床にレールを造ることなく間仕切れてスッキリ。

壁のクロスは塗り壁風の上品な柄を採用。

廊下側にも収納スペースを設けました。
大きなキャンプ道具もすっぽりしっかり収納できます。
その戸には寝室戸と一体型にした引き違いを採用。

洋室への扉を開けると、今までなかった収納スペースの壁が現れます。
ニッチを造り、絵や小物を飾ることで、扉を開けてすぐにある壁の圧迫感を緩和。

寝室同様、洋室にリフォーム。

こちらからの収納スペースへの入口にも上吊戸を採用。
建具と床の落ち着いた雰囲気に白い上品な塗り壁風の壁。高級感あるモダンな大人の空間に仕上がりました。

コートやワンピースなど、洋服のサイズに合わせてハンガーパイプを設置。
これで、長いコートが床に着いてシワになることもなく、スッキリきれいに収納できます。
上部も棚を造りニッチを有効活用。

収納するものによって奥行きを変えられる可動棚。
ダボレールを採用したので、もちろん高さも収めるものによって変えられます。

メインサイトのTOPページはコチラ







ページ上に戻る
