30代こだわりの中古マンション×リノベーション 広島市中区

広島市の中心部にある利便性の良い土地で中古マンションを購入。
ご夫婦の持つだわりのデザインとライフスタイルに合わせオリジナルのリノベーションが完成
施工data
■ 築年数:29年
■ 施工日数:30日
■ 構造:RC造
■ 施工部位:全面(浴室を除く)
■ コーディネーター
城代 博(二級建築士・インテリアコーディネーター)
秋田 泰宏
★リフォームポイント
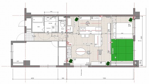
マンションに無垢フローリングを貼り、壁付I型のキッチンを対面式に。


LDKと和室2間の間仕切壁を取り払い、LDKに取り込み広々とした空間に。

床には北欧パインの無垢フローリングを貼り自然素材のワックスで仕上げました。
ワックス:オスモ社 ウッドワックス(チーク)
半透明カラーワックスは、無垢フローリングの木目を活かした仕上がりに。カラダにも優しい自然素材。

キッチン:トーヨーキッチン Bay(ベイ)
ドアパネル:テイン

壁付けI型のキッチンから、オープンな対面キッチンに。


和室からベッドルームへ
6畳2間の和室を間仕切り壁ごと解体し、LDKを広く。
LDKとの壁は圧迫間が感じられないよう天井とは離して壁を立てました。
南側のベランダからLDKへガラスブロック越しに光を通し明るいLDKに。




洋室は白に近いベージュのフローリングに張替え明るいキッズルームに。

オリジナルの洗面カウンターを製作。
壁いっぱいほどの大きな鏡。
廻りはモザイクタイルでデザイン。
スポットライト照明。
シンプルの中にデザイン性を込め、空間をかっこ良くまとめました。

メインサイトのTOPページはコチラ







ページ上に戻る


