
LDKを拡張して明るくオープンなLDK空間に。
機能的でデザイン性あるマンションリフォーム。
施工data
■ 築年数:16年
■ 施工金額:255万円
■ 施工日数:16日
■ 構造:RC
■ 施工部位:LDK・廊下他
■ コーディネーター:井筒 千世美
★リフォームポイント
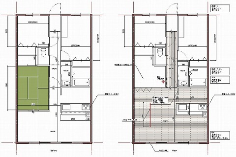
4畳分もあるウォークインクローゼットでスッキリ暮らせるプラン。
一番のこだわりは、キッチンにオーダーで製作し取り付けたL字のステンレスカウンター。
クールでスタイリッシュなLDK空間を演出。

リビングに隣接する6畳の和室を撤去し、3畳分をリビングに取り込み、残りの3畳分+押入れ1畳分をウォークインクローゼットに。
LDK+廊下の床を無垢フローリングに貼り替え、全室の壁・天井のクロスを貼り替えました。



遮音規定をクリアするため、既存の遮音フローリング上に遮音マット・コンパネ・無垢フローリングの順に施工。
壁・天井:クロス張り替え ¥90,000-
重ね貼りで床の高さが上がった為、建具をカットして調整しています。
建具カット:3ヶ所×¥6,000

床:カバ 無垢フローリング ダークブラウン(ウレタン塗装仕上げ)
¥280,000(31平米)

4畳分あるウォークインクローゼット。
壁のクロスと同じ白い6枚の扉で統一感あるスッキリとした空間に。
クローゼット:¥175,000

キッチン:クリナップSS ¥1,180,000(工事費込)





キッチンから外の景色が見えるようになりました。

シンプル&モダンなデザインのレンジフード
ARIAFINA(アリアフィーナ)の姉妹ブランド
Arietta(アリエッタ)
横壁面取付タイプ Barchetta( バルケッタ)
ステンレスの美しさが引き立つフォルムでオープンキッチンに最適なシンプルデザイン。

キッチン側面には、キッチン背面に施工したクロスと同じエンボス加工が施された立体感のある黒いクロスでモダンな印象に。
ステンレスとの相性も抜群のカッコよさ。

L字のステンレスをオーダーで製作し、カウンターを造作しています。
ステンレスの美しさがまし、より存在感あるキッチンに。
製作・取付費 ¥170,000


床:フローリング張り替え ¥60,000
壁・天井:クロス張り替え ¥21,000
メインサイトのTOPページはコチラ







ページ上に戻る
