
中古マンションを購入し、リフォーム。
予算内で叶えた無垢フローリングの温かみのある空間。
施工data
■ 築年数:15年
■ 施工金額:213万円
■ 施工日数:20日
■ 構造:RC
■ 施工部位:LDK・洋室・廊下他
■ コーディネーター:井筒 千世美
★リフォームポイント
全体的に雰囲気を統一させた素材でコーディネイト。

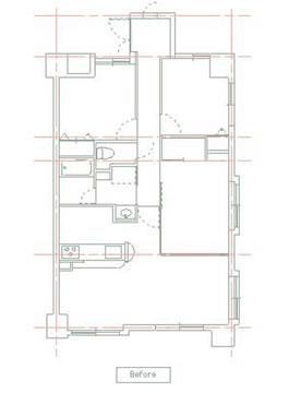
施工前
3LDK

施工後
2LDK
リビングに隣接する洋室をリビングに取り込みLDKを広々とした空間に。
0.75坪程度の押入れを1.5坪のウォークインクローゼットにし、収納力アップ。
セミクローズドキッチンの廻りの壁を撤去しオープンな対面式キッチンに。



◆床:北欧パイン W113 ¥4,000/㎡
自然塗料 オスモ <ウッドワックス>にて塗装。
塗膜をはらないので無垢の木の呼吸を妨げず、美しい木目を保ちながら自然な仕上がりに。
今回の塗装仕上げは、お施主様のセルフリフォーム。

今回、キッチンはお施主様支給にてパナソニックのリビングステーションを設置されています。
キッチンの面材に合わせて、カウンターを取り付けました。
◆無垢集成材 ¥59,000(施工費込)



クッションフロア貼りだったキッチンの床には、今回コルクタイルを施工。
キッチン、LDの無垢フローリングともかなり相性良くまとまっています。
コルクタイルは、耐水性に優れ、足触りのいい天然素材の床材です。



壁・天井 クロス張り替え
床:クッションフロア貼り替え
◆内装工事 ¥35,000-
イエローのアクセントクロスで空間が明るく。

複合フローリングから、LDと同じく無垢フローリングに。
小容量のクローゼットも、隣の洋室から取り込み大容量のウォークインクローゼットで収納力アップ。
◆壁・天井:クロス貼り替え ¥73,500(ウォークイン含む)

別の洋室も同様フローリングを貼り替え、クローゼットの扉を開き戸から使い勝手の良い3枚引き戸に取替。
◆パナソニック 収納3枚引き戸 W1645
¥68,000
◆壁・天井:クロス張り替え ¥56,700

LD,洋室同様、無垢フローリングを施工。
玄関の上り框はオーダーで製作。
メインサイトのTOPページはコチラ







ページ上に戻る
