
賃貸としていた物件で借主が退去したため、今回お施主様のマイホームとしてリノベーション。
施工data
■ 築年数:11年
■ 施工金額:460万円
■ 施工日数:30日
■ 構造:RC造
■ 施工部位:全面
■ コーディネーター: 城代 博
☆リフォームポイント
シンプルな空間にアクセントを効かせ、メリハリのついた大人の空間になるようデザイン。


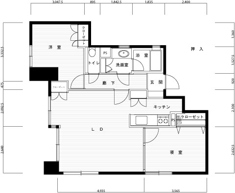
LD横にあった洋室の壁を撤去し23平米のLD空間に。
和室は寝室に使用変更し全室の壁・天井のクロス貼り替え、フローリングの張り替えを行いました。
キッチン、浴室、トイレの水廻り設備取り替え。

縦に伸びたLD空間から隣の洋室の壁を撤去し明るく広々とした空間に。
■洋室撤去:¥140,000-

■クロス張り替え:¥444,000(全面310m)既存剥がし、施工手間含む
■床張り替え:ダイアモンドフロア L45/東洋テックス¥370,000-(60平米)既存剥がし、施工手間、巾木他含む。
床、壁、天井はホワイト系、建具、キッチンをダーク系にまとめ、2トーンのカラー使いで統一感を出しました。
シンプルながら、表情のあるクロスやあ幅広のフローリング、大人っぽい建具で高級感を演出。

LD、廊下の壁は真っ白なクロスを選択。
塗り壁調のクロスは光の加減で表情を変え、雰囲気ある空間を演出。

キッチンからLDへの廊下は、天井が下がっていたので、天井を解体して高さを合わせました。
キッチンへの狭い廊下も広々。
LDへの動線もスムーズに。


幅広のフローロングが高級感を演出。
ドア、キッチン入口枠、キッチンを同系色にまとめ、シンプルで統一感ある空間に。

■明かりとり:¥12,300-
枠、型板ガラス


6畳和室を寝室に仕様変更。
LD他に使用した遮音フローリングに張り替え、部屋に入って最初に目に入る壁にアクセントクロスを貼り、空間にメリハリをつけました。

間仕切り壁に明かりとりのガラスをはめ込み圧迫感を軽減。


間仕切り壁につけた明かりとり窓が寝室の圧迫感も軽減。
ダークカラーのドアで空間がひきしまります。
窓には、断熱、防音効果のある内窓を設置。
■内窓:インプラス/トステム
住宅エコポイント対象商品
¥49,000-


■クローク収納
・クローゼット収納4枚折れ戸セット
定価¥108,600-
ハイグロス/大建工業
W1680 H2262
・内部収納:KANTANA(カンタナ)/大建工業
間口に合わせてユニットを選べる内部収納。
収納枕棚+ハンガーパイプ+収納棚(プラン21)
定価¥35,300-
施工費:¥118,000-

■キッチン:ラクエラ/クリナップ
I型2550 食洗器、IH2口 定価¥1,080,500-
¥947,000-



キッチン背面のニッチにはオーダーで収納家具を設置。
こちらは、壁に合わせフラットでスッキリ見えるようにホワイトで仕上げました。
カップボード・ダストボックス・家電カウンター(集成材)
¥120,000-


キッチン入口の額縁は、既存の枠に、新たに取り替えた別のヶ所の建具と合わせダイノックシートを施工。
■ダイノックシート施工:¥18,000-

クロス張替
床張替(LD、しんしつ、廊下と同じ)

こちらはアクセントクロスは使わず、扉をアクセントにしています。
クロスは真っ白ではなく、ほんのにグレイがかった色で仕上げました。

■浴室:マンション用リモデルバスルーム/TOTO
高断熱浴槽(エコポイント対象商品)
¥806,000-

洗濯機上部にキッチン背面と同素材で収納家具を設置。
¥58,000-

■便器:ネオレスト ハイブリットAH/TOTO
節水型便器(住宅エコポイント対象商品)
¥467,000-(施工費、便器他商品代含む)
トイレ正面の壁には、調湿・脱臭効果の高いエコカラット(INAX)アクセントに。
■エコカラット¥33,000-(商品代、施工費含む)
鏡があることで空間に広がりも。
メインサイトのTOPページはコチラ







ページ上に戻る


