収納リノベーション 広島市西区

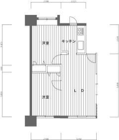
3LDKマンションの洋室2部屋をお子さん二人のためのスペースに。
リビングとキッチンにも壁面収納を造り付けスッキリとした空間に。
施工data
■ 築年数:11年
■ 施工金額:200万円
■ 施工日数:14日
■ 構造:RC造
■ 施工部位:洋室・LDK
■ コーディネーター:城代 博
☆リフォームポイント
限られた空間にお子さん二人のプライベート空間と収納室を作りました。


洋室二部屋を納戸と子供部屋にリノベーション。
勉強机、PC机一体の壁面造作家具でスッキリした空間に。
キッチン、リビングにも壁面オーダー家具を造作。


納戸と子ども部屋ではオーダーで製作したガラス入りの建具で、子ども部屋も明るく。

淡いライムグリーンのアクセントクロスで爽やかで明るい空間に。
メインサイトのTOPページはコチラ







ページ上に戻る


