マンションリビングリノベーション 広島市安佐南区 reno+plus11

中古マンションを購入されてのリノベーション。
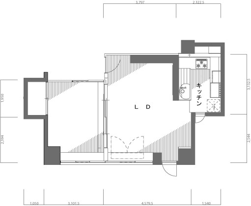
LDKを中心としたリノベーションで、和室をLDと一体化させ、来客時には独立できるLDKに。
■ 築年数:16年
■ 施工費:458万円
■ 施工日数:30日
■ 構造:RC造
■ 施工部位:全面
■ コーディネーター:城代 博
★リフォームポイント
統一感がありシンプルで上質な空間になるよう素材を組み合わせコーディネイト。


和室、キッチンの壁を取り払ってLDKを一体化。
キッチンは壁付けから対面式のL型キッチンに。

可動間仕切りはオーダーで製作。
□床:直張りフローリング LL40 オトユカアート
/大建
施工費 ¥880,000(既存剥がし、巾木、張り手間含む) LDK約40㎡分

LD間仕切り 4枚戸襖 オーダー製作
施工費¥179,000-
(戸枠、取り付け費他含む)

キッチン廻りの壁を取り払いオープンに。
腰壁を造作してカウンターを設け壁面収納も設置。


壁にガラスブロックを埋め込み壁の向こう側の玄関にここからの明かりがさし込みます。


出窓部分の壁を利用して、室内用物干しを設置。
つまみをひっぱると出てくるワイヤーを、反対側の壁に取り付けた専用フックに引っかけるだけで室内物干しの利用ができます。

必要な時だけ使用できて邪魔にならないシンプルなデザイン。
Pid/森田アルミ工業

出窓カウンター下の空間を利用。
壁を抜いて収納スペースを作りました。

□キッチン:ベリー L型+ハイカウンター/ヤマハ
食洗器付き 本体定価¥2,056,250-
施工金額¥1,699,000-
(解体費、電気工事他含む)


壁:クロス張り替え
床:カーペット張り替え
LDKの可動間仕切りを収納できる壁を造作。

壁:クロス張り替え
床:カーペット張り替え
メインサイトのTOPページはコチラ







ページ上に戻る



