
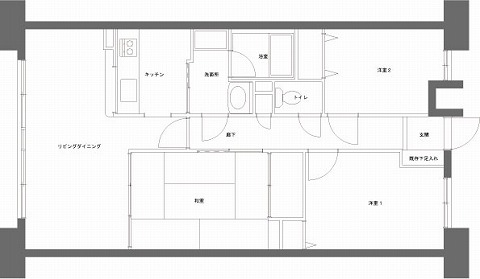
中古マンションをご購入されてのリノベーション。
水廻りはトイレ以外全て取り替え、それぞれの
部屋を用途に合わせ、再構築しました。
■ 築年数:16年
■ 施工費:350万円
■ 施工日数:20日
■ 構造:RC造
■ 施工部位:全面
■ コーディネーター:城代 博
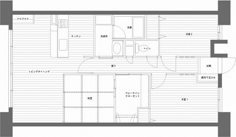
★リフォームポイント
バリアフリー化と天然素材を使った優しい
居住空間。


和室と押入れを解体し、ウォークインクローゼットを
新設。
一段下がっていたリビングの床を置き床で上げ、
廊下と和室、リビングをバリアフリーに。
他にもキッチンの吊戸撤去やPCデスク新設など
用途に合わせた空間構成。

キッチンカウンター、笠木を取り替え、塗装。
仕上げ:オスモウッドワックス ウォルナット色

リビング入口枠は既存のまま、白に塗装。
扉はオーダー製作。

低かったリビングの床を置き床で上げ、バリアフリー
に。防音対策にもなります。
フローリング→和室敷居→畳までがフラット。

下がり壁、キッチン吊戸撤去。
開放的な空間に。
キッチン クリナップ/ラクエラ

レイアウト後
お施主様の照明や家具、とても統一感あります。

和室3枚引き戸 オーダー製作
仕上げ:オスモウッドワックス ウォルナット色

アクセントにネイビー色のクロス。
畳はオーダー。
室内窓:大建工業 マドモ
採光だけでなく湿気、カビ対策にもなります。

洋室
アクセントクロス グリーン色。
ガラスブロック 190角 3列
廊下の採光になります。

床:長尺シート貼り
壁一部:アクセントクロス

ユニットバス、洗面台、洗濯パン全て取り替え
床貼り替え:フローリング調クッションフロア

ウォークインクローゼット
枕棚+ハンガーパイプ
可動棚4段
床:フローリング調クッションフロア
収納力がアップしました。
メインサイトのTOPページはコチラ







ページ上に戻る


