
築20年の一戸建て中古住宅を購入されたS様ご夫婦。自然素材を採用した居心地の良い和モダンな空間にリノベーション。
施工data
■ 築年数:20年
■ 施工費:593万円
■ 施工日数:30日
■ 構造:木造
■ 施工部位:1階全面
■ コーディネーター:井筒千世美
★リフォームポイント
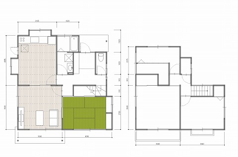
憧れの対面式キッチンにするため、水廻りを含む大幅な間取り変更をしました。自然素材の採用や水廻り設備などこだわる部分に費用をかけ、珪藻土の塗り壁はセルフリフォームをするなど賢くリフォーム。


◆和室を解体し広々としたLDK空間に。
◆玄関前の廊下側にあった2階への階段をLDK側に変更。
◆キッチン、浴室・洗面の水廻りを大幅に間取り変更


壁には自然素材である珪藻土(MPパウダー)
床は、杉の無垢フローリングに自然素材”いろは”で仕上げ調質効果抜群の快適さに囲まれた心地いいLDK空間。
照明はダウンライトでスッキリとした和モダンを演出。
渋めのグリーンで壁一面にアクセントをつけました。





和モダンの空間にぴったりなシンプルで味のある造り付けテレビボード。

ヤマハBB I型W2550 Cシリーズ
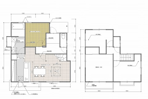
対面式キッチン

キッチン背面には、大要量カップボードを造作。
3枚引き戸/パナソニック
¥185,000



LDK同様、調質効果の期待できる珪藻土で壁を仕上げました。
こちらもダウンライトでスッキリとした空間になっています。
洗面台:INAX ピアラDS W750
こちらの洗面プランは、大きな一面鏡に照明がついており、洗面ボウル下の棚は、取り出しがラクで飾り棚としても使えるシンプルなオープンタイプの収納。
シンプルでスクエアのフォルムが空間をスッキリまとめてくれます。


システムバス:ヤマハ ビュートF EX 1616Eグレード
バスタイムをもっと楽しく快適にしてくれる、ミストサウナ付。
サウンドシャワーシステムでお気に入りの音楽を聴きながらゆったりとしたバスタイムを過ごす事ができます。

スイッチ脇にある専用機器にお手持ちのオーディオを繋げば、バスルームで音楽を楽む事ができます。
写真に見える正方形のニッチは、ipodを置くスペースとして製作。

浴室や洗面室があった場所に、ゲストルームを配置。
LDKとは床材を変えて、パインの無垢フローリングを施工。もちろん壁は珪藻土で仕上げ、ゲストもしっかり癒される空間となりました。

こちらは1階廊下の天井です。
既存のクロスの状態がよく、今回は張り替えを行いませんでした。
リフォーム後の空間にもマッチしています。
メインサイトのTOPページはコチラ







ページ上に戻る
