マンションリノベーション 広島市南区 reno+plus15

築14年南区比治山Y様邸リノベーション
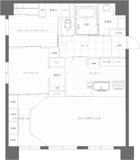
施工data
■ 築年数:14年
■ 施工金額:¥8,500,000(税別)
■ 施工日数:30日
■ 構造:RC造
■ 施工部位:全面
■ コーディネーター:城代博(二級建築士・インテリアコーディネーター)
建具や棚、フローリングなどの木部は無垢材を使用し、壁面は自然素材の珪藻土仕上げ。開口も広く取り、ゆったりした空間。
体に優しく、それでいて美しいデザインを追求しました。


個々の空間の使用目的をはっきりさせ、使い易さを重視した間取り。
水廻り関係は全て取り替えていますが、洗面台など既製品+造作でオリジナリティも出しています。

壁面はガラスブロック、珪藻土仕上げ。
床は土間から廊下まで同じ(INAX 300角磁器タイル)で仕上げ明るい玄関になりました。

廊下は以前より約40cm広くなりました。
壁面には採光用のガラスブロックを埋め込みました。
この二つの効果で廊下の圧迫感はかなり解消出来ました。

TOYOキッチン : BAY
床 : INAX 300角磁器タイル
吊戸棚 : オーダー製作
(塗装:オスモウッドワックス チーク色)

右手、キッチンの隣に立っている柱はパイプスペースです。この真裏はシェリフになっていて、本やCDを置けます。
家具屋さんに柱ごと製作してもらい、設置しました。

天井は新しく組み、ダウンライトを取り付けました。床も塗装はオスモウッドワックス(チーク色)で統一しています。アンティークな雰囲気です。

新しく設けた書斎スペース。
デスクを照らすダウンライトが珪藻土の陰影を引き立て、雰囲気を出しています。
机の背中側には可動棚を設けて本棚を造りました。
メインサイトのTOPページはコチラ







ページ上に戻る
