南区H様邸リノベーション
施工data
■ 築年数:10年
■ 施工金額:¥1,800,000(税別)
■ 施工日数:20日
■ 構造:RC造
■ 施工部位:キッチン、リビング、廊下
■ コーディネーター:城代博(二級建築士・インテリアコーディネーター)
キッチン廻りは壁をオープンにすることで家族との
コミュニケーションがより生まれるように。
タイル等で視覚的にもこだわりつつ、収納システムで実用性も高めています。
自然素材もふんだんに使い、小さなお子さんとペット
が居る空間を優しく包み込みます。

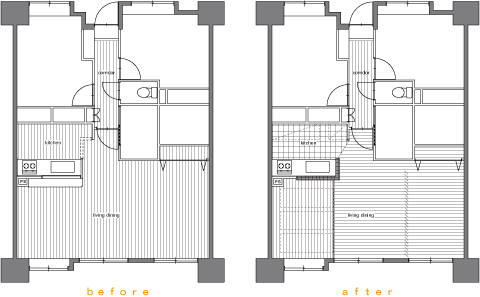
間取りは変えず、素材とアイデアでリフォーム。
間取り変更=リフォーム ではない良い例です。

吊戸と垂れ壁を撤去し、明るく開けたキッチンに。
木枠も無垢材を使用して暖かい雰囲気になりました。
照明器具も撤去してダウンライトとライティングレールでスッキリした印象に。
レンジフードは
リンナイ 「クリーンフード」
に新しく取り替えました。


吊戸、垂れ壁撤去前と後。
かなり広々とした空間に変わりました。
キッチン本体はキレイな既存のものをそのまま利用。工事中は取り外し、工事後もとに戻すといった流れです。
キッチン大工工事( 工事費:¥150,000)
キッチンの床材は
名古屋モザイク 「バイオアーチストーン」 200㎜角

キッチンカウンターには
名古屋モザイク 「アートモザイク」 15.5㎜角
を貼りました。
ホワイトベースですが、ところどころ違う色のタイルにすることでアクセントとかわいらしさを演出。

無垢フローリングで暖かく、肌に優しい暮らしを。
ナラの無垢フローリング 90㎜巾
床フローリング工事/遮音床下地共
( 工事費:¥600,000)
垂れ壁が無くなったことでキッチンとリビングに一体感が生まれました。


リビングの一部を収納システムにしました。
ここには奥行き2m近くの大容量収納ワゴンを3つ
設置。
キャスター付きなので出し入れも簡単に。
収納上部にもフローリングを貼り、そこでくつろぐことも出来ます。
収納付き上げ床( 工事費:¥120,000)

リビング中央付近にタテ型ブラインドを設け、必要に
応じて空間を二つに分けることが出来ます。
タチカワブラインド 「ラインドレープ」

壁面には自然素材の塗り壁17ダイアトーマスを施工。
体に優しく、調湿効果も期待出来ます。

上り框、巾木は無垢フローリングに合わせて造作。
一体感を持った自然床材になりました。

廊下がカラーフロアから無垢材に変わったことで
玄関に入った瞬間から印象が違います。
優しい雰囲気に変わりました。
メインサイトのTOPページはコチラ







ページ上に戻る
